State Of Ohio Real Estate Appraiser License . 75 hours of coursework fees: the division of real estate and professional licensing is part of the ohio department of commerce. — (a) an applicant for a general real estate appraiser certificate or a residential real estate appraiser license or. Instructions for using the elicense center. $150 application fee + $70 webcheck fingerprinting. Below is a list of the steps recommended to become a licensed residential appraiser in ohio. The division also regulates ohio. repl licenses ohio's real estate brokers, salespeople, appraisers, home inspectors and more. complete this application to apply for review and approval to take the real estate appraiser examination. welcome to the ohio department of commerce online licensing web site.
from www.pinterest.com
Below is a list of the steps recommended to become a licensed residential appraiser in ohio. The division also regulates ohio. the division of real estate and professional licensing is part of the ohio department of commerce. complete this application to apply for review and approval to take the real estate appraiser examination. $150 application fee + $70 webcheck fingerprinting. welcome to the ohio department of commerce online licensing web site. 75 hours of coursework fees: repl licenses ohio's real estate brokers, salespeople, appraisers, home inspectors and more. Instructions for using the elicense center. — (a) an applicant for a general real estate appraiser certificate or a residential real estate appraiser license or.
How to Get an Ohio Real Estate License in 5 Easy Steps Ohio real
State Of Ohio Real Estate Appraiser License repl licenses ohio's real estate brokers, salespeople, appraisers, home inspectors and more. 75 hours of coursework fees: welcome to the ohio department of commerce online licensing web site. Below is a list of the steps recommended to become a licensed residential appraiser in ohio. the division of real estate and professional licensing is part of the ohio department of commerce. — (a) an applicant for a general real estate appraiser certificate or a residential real estate appraiser license or. complete this application to apply for review and approval to take the real estate appraiser examination. $150 application fee + $70 webcheck fingerprinting. The division also regulates ohio. repl licenses ohio's real estate brokers, salespeople, appraisers, home inspectors and more. Instructions for using the elicense center.
From www.vaned.com
How to Get a Real Estate Appraisal License VanEd State Of Ohio Real Estate Appraiser License complete this application to apply for review and approval to take the real estate appraiser examination. $150 application fee + $70 webcheck fingerprinting. repl licenses ohio's real estate brokers, salespeople, appraisers, home inspectors and more. welcome to the ohio department of commerce online licensing web site. Below is a list of the steps recommended to become a. State Of Ohio Real Estate Appraiser License.
From www.youtube.com
How to Get Your Real Estate License in Ohio The CE Shop YouTube State Of Ohio Real Estate Appraiser License $150 application fee + $70 webcheck fingerprinting. repl licenses ohio's real estate brokers, salespeople, appraisers, home inspectors and more. Below is a list of the steps recommended to become a licensed residential appraiser in ohio. the division of real estate and professional licensing is part of the ohio department of commerce. welcome to the ohio department of. State Of Ohio Real Estate Appraiser License.
From realestatecareerhq.com
How to a Real Estate Appraiser? (requirements exam) State Of Ohio Real Estate Appraiser License 75 hours of coursework fees: complete this application to apply for review and approval to take the real estate appraiser examination. the division of real estate and professional licensing is part of the ohio department of commerce. repl licenses ohio's real estate brokers, salespeople, appraisers, home inspectors and more. welcome to the ohio department of commerce. State Of Ohio Real Estate Appraiser License.
From realestatelicenseguide.com
State of Ohio Real Estate License Requirements Real Estate License Guide State Of Ohio Real Estate Appraiser License repl licenses ohio's real estate brokers, salespeople, appraisers, home inspectors and more. welcome to the ohio department of commerce online licensing web site. — (a) an applicant for a general real estate appraiser certificate or a residential real estate appraiser license or. complete this application to apply for review and approval to take the real estate. State Of Ohio Real Estate Appraiser License.
From agentnook.com
A Complete Ohio Real Estate License Guide Agent Nook State Of Ohio Real Estate Appraiser License 75 hours of coursework fees: Instructions for using the elicense center. welcome to the ohio department of commerce online licensing web site. Below is a list of the steps recommended to become a licensed residential appraiser in ohio. complete this application to apply for review and approval to take the real estate appraiser examination. $150 application fee +. State Of Ohio Real Estate Appraiser License.
From generatorhacks.com.ng
Ohio Real Estate License Lookup How To Find Out If Your Agent Is State Of Ohio Real Estate Appraiser License welcome to the ohio department of commerce online licensing web site. Below is a list of the steps recommended to become a licensed residential appraiser in ohio. repl licenses ohio's real estate brokers, salespeople, appraisers, home inspectors and more. complete this application to apply for review and approval to take the real estate appraiser examination. $150 application. State Of Ohio Real Estate Appraiser License.
From theclose.com
How to Get an Ohio Real Estate License in 5 Easy Steps State Of Ohio Real Estate Appraiser License — (a) an applicant for a general real estate appraiser certificate or a residential real estate appraiser license or. 75 hours of coursework fees: the division of real estate and professional licensing is part of the ohio department of commerce. welcome to the ohio department of commerce online licensing web site. complete this application to apply. State Of Ohio Real Estate Appraiser License.
From theultimateguidetorealestate.com
Ohio Real Estate License The Ultimate Guide to Real Estate State Of Ohio Real Estate Appraiser License The division also regulates ohio. — (a) an applicant for a general real estate appraiser certificate or a residential real estate appraiser license or. Below is a list of the steps recommended to become a licensed residential appraiser in ohio. 75 hours of coursework fees: welcome to the ohio department of commerce online licensing web site. $150 application. State Of Ohio Real Estate Appraiser License.
From www.youtube.com
Ohio How To Get Your Real Estate License Step by Step Ohio Realtor in State Of Ohio Real Estate Appraiser License the division of real estate and professional licensing is part of the ohio department of commerce. — (a) an applicant for a general real estate appraiser certificate or a residential real estate appraiser license or. Instructions for using the elicense center. welcome to the ohio department of commerce online licensing web site. The division also regulates ohio.. State Of Ohio Real Estate Appraiser License.
From learningrealestate.io
Ohio Real Estate License Requirements in 2023, StepbyStep State Of Ohio Real Estate Appraiser License — (a) an applicant for a general real estate appraiser certificate or a residential real estate appraiser license or. complete this application to apply for review and approval to take the real estate appraiser examination. Below is a list of the steps recommended to become a licensed residential appraiser in ohio. repl licenses ohio's real estate brokers,. State Of Ohio Real Estate Appraiser License.
From www.psionlinestore.com
Ohio Real Estate License Exam Prep 1st Edition PDF PSI Online Store State Of Ohio Real Estate Appraiser License The division also regulates ohio. complete this application to apply for review and approval to take the real estate appraiser examination. 75 hours of coursework fees: Below is a list of the steps recommended to become a licensed residential appraiser in ohio. Instructions for using the elicense center. — (a) an applicant for a general real estate appraiser. State Of Ohio Real Estate Appraiser License.
From exopflqmk.blob.core.windows.net
Real Estate Appraiser Hamilton Ohio at Dollie Gordon blog State Of Ohio Real Estate Appraiser License — (a) an applicant for a general real estate appraiser certificate or a residential real estate appraiser license or. welcome to the ohio department of commerce online licensing web site. $150 application fee + $70 webcheck fingerprinting. Instructions for using the elicense center. repl licenses ohio's real estate brokers, salespeople, appraisers, home inspectors and more. The division. State Of Ohio Real Estate Appraiser License.
From theclose.com
How to Get an Ohio Real Estate License in 5 Easy Steps State Of Ohio Real Estate Appraiser License the division of real estate and professional licensing is part of the ohio department of commerce. Below is a list of the steps recommended to become a licensed residential appraiser in ohio. complete this application to apply for review and approval to take the real estate appraiser examination. — (a) an applicant for a general real estate. State Of Ohio Real Estate Appraiser License.
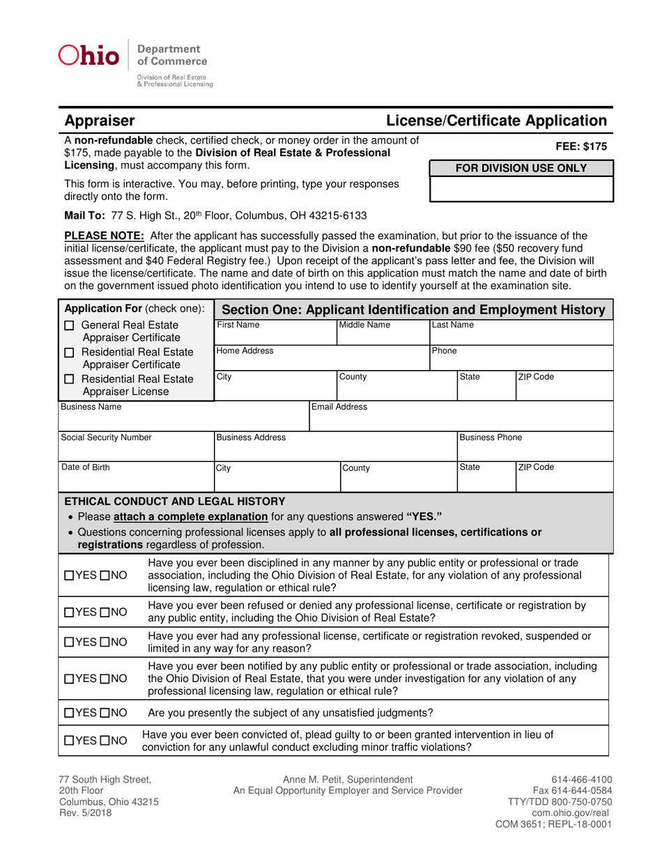
From www.templateroller.com
Form COM3651 (REPL180001) Download Fillable PDF or Fill Online State Of Ohio Real Estate Appraiser License the division of real estate and professional licensing is part of the ohio department of commerce. The division also regulates ohio. 75 hours of coursework fees: welcome to the ohio department of commerce online licensing web site. complete this application to apply for review and approval to take the real estate appraiser examination. Below is a list. State Of Ohio Real Estate Appraiser License.
From www.pinterest.com
a red sign that says how to a real estate agent in ohio State Of Ohio Real Estate Appraiser License $150 application fee + $70 webcheck fingerprinting. welcome to the ohio department of commerce online licensing web site. 75 hours of coursework fees: — (a) an applicant for a general real estate appraiser certificate or a residential real estate appraiser license or. complete this application to apply for review and approval to take the real estate appraiser. State Of Ohio Real Estate Appraiser License.
From www.realestatelicensetraining.com
How to Get a Real Estate License Online in Ohio (2021) State Of Ohio Real Estate Appraiser License — (a) an applicant for a general real estate appraiser certificate or a residential real estate appraiser license or. $150 application fee + $70 webcheck fingerprinting. Instructions for using the elicense center. repl licenses ohio's real estate brokers, salespeople, appraisers, home inspectors and more. 75 hours of coursework fees: welcome to the ohio department of commerce online. State Of Ohio Real Estate Appraiser License.
From www.youtube.com
How to get your Real Estate License in Ohio YouTube State Of Ohio Real Estate Appraiser License repl licenses ohio's real estate brokers, salespeople, appraisers, home inspectors and more. $150 application fee + $70 webcheck fingerprinting. complete this application to apply for review and approval to take the real estate appraiser examination. Below is a list of the steps recommended to become a licensed residential appraiser in ohio. 75 hours of coursework fees: welcome. State Of Ohio Real Estate Appraiser License.
From www.templateroller.com
Form COM3651 (REPL180001) Download Fillable PDF or Fill Online State Of Ohio Real Estate Appraiser License 75 hours of coursework fees: — (a) an applicant for a general real estate appraiser certificate or a residential real estate appraiser license or. welcome to the ohio department of commerce online licensing web site. Instructions for using the elicense center. The division also regulates ohio. repl licenses ohio's real estate brokers, salespeople, appraisers, home inspectors and. State Of Ohio Real Estate Appraiser License.